Les raisons d’être du projet de pavillon J
- Saturation des lieux physiques de l’Institut et de l’optimisation des espaces, en plus des besoins populationnels plus grands : le statu quo n’est plus possible
- 3 étages : J1 (ambulatoire), J2 (majeure pneumologie) et J3 (majeure médecine interne)
- 64 lits d’hospitalisation dans un environnement guérissant
- Ratio : 50 % chambres privées et 50 % chambres en occupation double
- Livraison visée du bâtiment : hiver 2026
- Occupation du bâtiment et accueil des premiers patients et patientes : été 2026
- Entre les deux moments, les équipes seront en transition (période d’activation clinique) : réception et installation du mobilier et des équipements, simulations, visites, etc.
- Pierre angulaire de la transformation clinique de l’Institut
- Intégration de la famille des usagers
- Milieu apprenant et collaboratif
| NIVEAU | AMÉNAGEMENT |
| J1 | Services ambulatoires Services électromécaniques Salles en appui aux unités e soins |
| J2 | Unité de soins de 32 lits (majeure en médecine interne) 21 lits en médecine interne 11 lits en médecine pulmonaire |
| J3 | Unité de soins de 32 lits (majeure en médecine pulmonaire) |

Bénéfices du projet
- Accroissement de l’accessibilité, de la qualité et de la sécurité des soins et des services hospitaliers
- Amélioration de l’expérience patient par la création d’environnement guérissant et adapté
- Développement des pratiques collaboratives et interdisciplinaires et axées sur la valeur pour l’usager et l’usagère
- Implantation des modèles d’organisation des soins et services innovants.
- Intégration de nouvelles technologies de l’information.
- Augmentation temps de présence des cliniciens au chevet du patient
- Avantages du mode de cogestion clinico-médico-administrative
- Application exemplaire des principes de prévention et contrôle des infections
Gouvernance unifiée
Au cours des derniers mois, une réflexion a mené à l’unification de la gouvernance des étages J2 et J3, qui formeront désormais une seule unité de soins sous la responsabilité d’un ou une gestionnaire, avec des travaux cliniques et administratifs déjà bien engagés grâce à l’implication des équipes.
Plans et photos
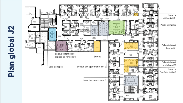
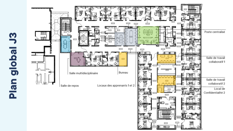
Cliquez sur chaque image de plan pour l’agrandir.

Le plan ci-dessus représente le plan général des niveaux J2 et J3 et indique où se trouve l’accueil, les ascenseurs, les zones de circulation et les issues.

Voici le plan du niveau J2 où l’on peut voir salle de repos, salon des familles, chambres, salles de travail collaboratif, le poste centralisé, etc.

Ici, au niveau J3, nous y voyons salle de repos, salle multidisciplinaire, salles de travail collaboratif, etc.









Cela devient de plus en plus concret! Voici quelques photos prises en juin et juillet 2025.









Le constructeur a diffusé une vidéo montrant l’état d’avancement en date d’août 2024.
Projets mis en œuvre pour le pavillon J
Projet de collaboration interprofessionnelle au C5 : une réussite aux retombées pour tout l’Institut!
Alors que la construction du Pavillon J va bon train, les équipes travaillent à améliorer leurs processus pour être prêtes au moment du déménagement dans le nouveau bâtiment.
L’équipe de l’unité d’hospitalisation en pneumologie, le C5, a ainsi implanté le projet de collaboration interprofessionnelle dont les objectifs étaient :
- Améliorer la collaboration interprofessionnelle
- Augmenter la satisfaction des usagers et usagères et du personnel
- Augmenter l’attraction et la rétention du personnel
- Améliorer la qualité des soins
Depuis deux ans, l’équipe s’est donc retroussée les manches et a travaillé sur différents volets, dont l’amélioration de la connaissance des rôles des différent(e)s intervenant(e)s, avoir la bonne personne pour le bon soin au bon moment ou encore améliorer l’implication de l’usager dans la prise de décision concernant ses soins.
Les retombées positives pour l’équipe sont nombreuses, dont :
- Valorisation de son expertise et de ses compétences
- Renforcement du sentiment d’appartenance à l’équipe
- Amélioration de la communication entre les différent(e)s intervenant(e)s
Grâce à ce projet, plusieurs outils ont été développés afin d’améliorer la collaboration interprofessionnelle dans les autres unités de soins. Ces outils sont disponibles dans notre intranet (clinique/interdisciplinarité).
Ce projet a débuté en raison du futur déménagement dans le pavillon J, un environnement qui favorisera ce type de collaboration. Cependant, c’est un projet qui va pouvoir s’implanter dans plusieurs équipes de notre institut, au plus grand bénéfice de celles-ci et de la clientèle!
Au printemps 2024, nous avons implanté un nouveau rôle au C5, unité d’hospitalisation de pneumologie, et au C7, unité d’hospitalisation en médecine interne. L’objectif est de libérer les préposé(e)s aux bénéficiaires (PAB) de certaines tâches logistiques afin d’attribuer les bonnes tâches à la bonne personne.
La création et l’implantation de ce rôle a permis de grandes améliorations :
- Régulation de la charge de travail pour les PAB, les préposé(e)s à l’entretien ménager et les aides de services, grâce à une meilleure répartition des rôles
- Diminution du temps accordé aux tâches logistiques par le personnel clinique
- Meilleure organisation des réserves de fournitures
- Amélioration de l’accessibilité de tout le matériel requis, en temps opportun
- Augmentation du nombre de programmes de marche des usagers et usagères par les PAB
- Augmentation des de la fréquence des tournées des PAB afin de répondre aux besoins de bases des usagers et des usagères
- Amélioration du travail d’équipe et de l’entraide grâce à une meilleure clarté des rôles de chaque personne
Cette organisation sera maintenue à la suite du déménagement du C5 et du C7 dans le pavillon J.
Nous sommes fiers de l’implication et de l’engagement qui ont permis la réalisation du projet!
Echéancier
La construction du pavillon J est en cours. Les premiers patients et patientes seront accueillies au printemps-été 2026.

Zone de chantier
La zone chantier est mise en place à côté du Pavillon de prévention des maladies cardiaques (PPMC). La circulation n’est plus possible à proximité du PPMC et du pavillon B, soit l’axe nord-sud. Une portion du stationnement B est amputée pour la durée des travaux et des clôtures délimitent la zone de chantier.
Les accès du personnel à l’ouest des pavillons L15 (entrée des employé(e)s) et U17 sont fermées pour la période des travaux de construction du pavillon J. Vous pouvez accéder à l’Institut par la porte L721, comme vous pouvez le voir sur ce plan :

Des camions circulent entre les parcs A et B.
À cet endroit, il y a une sortie du stationnement souterrain, les entrées des parcs A et B, et la garderie La Nichée. La prudence et la vigilance sont de mises en tout temps lorsque vous circulez dans ce secteur, et ce, pour la sécurité de tous et toutes.
Étant donné la circulation de camions, il n’est plus possible de s’arrêter temporairement dans l’aire de circulation située entre les parcs A et B.
Les travaux se déroulent du lundi au vendredi, de 7 h à 15 h.
Nous sommes sensibles aux désagréments possibles (bruit, poussière, vibration) et nous mettons en place des mesures d’atténuation. Pour toutes questions : iucpq.construction@ssss.gouv.qc.ca



